

ユニットハウスをシャーシに載せ、移動可能にした「クールボックス モビリティ」。
車輪付きのシャーシに載せる事により車両として見なされる事になります。
特殊車両として、また、車検を通したシャーシを使う事によりナンバーを取得し牽引する事も可能で、基礎工事が不要で建築確認申請の対象外となります。


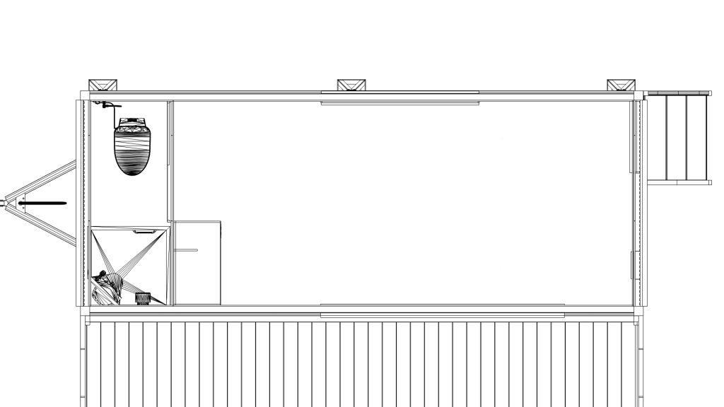
ユニットハウスをシャーシに載せ、移動可能にした「クールボックス モビリティ」。
車輪付きのシャーシに載せる事により車両として見なされる事になります。
特殊車両として、また、車検を通したシャーシを使う事によりナンバーを取得し牽引する事も可能で、基礎工事が不要で建築確認申請の対象外となります。











